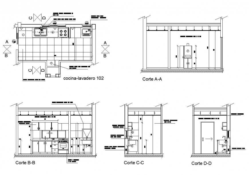
Kitchen structure detail plan and section 2d view layout file
Description
Kitchen structure detail plan and section 2d view layout file, platform detail, gas stove detail, rack and shelves detail, section line detail, wall and flooring detail, wash-basin detail, dimension detail, floor tiles detail, cut out detail, refrigerator detail, tap detail, door and window detail, section line detail, section A-A detail, section B-b detail, section C-C detail, section D-d detail, etc.
Uploaded by:
Eiz
Luna

